
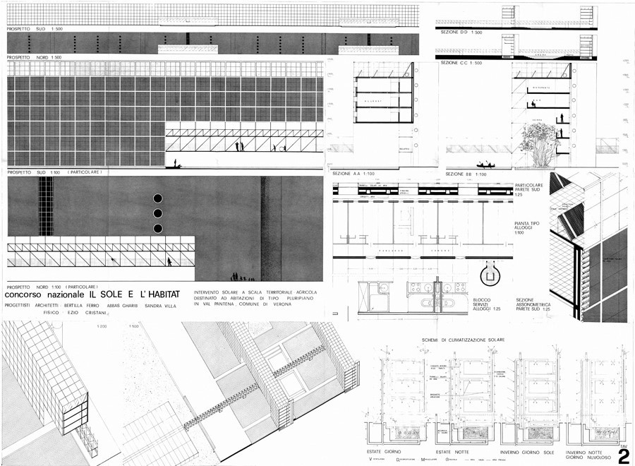
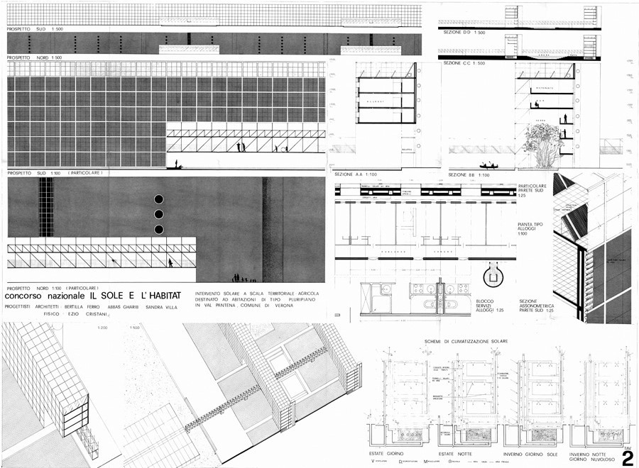
Concorso Nazionale IL SOLE E L'HABITAT per tipologie con uso di energia solare INARCH - 1979
Complesso residenziale nel territorio veronese con uso integrato di energie alternative
con Abbas Gharib, Sandra Villa , Ezio Cristani
1° PREMIO ex aequo
Complesso residenziale nel territorio veronese con uso integrato di energie alternative
con Abbas Gharib, Sandra Villa , Ezio Cristani
1° PREMIO ex aequo
