Casa Marinella Malcesine Logo Casa Marinella Malcesine Logo
  • Home
  • Architecture
  • Painting
  • Biography
  • Contact
Architecture
painting

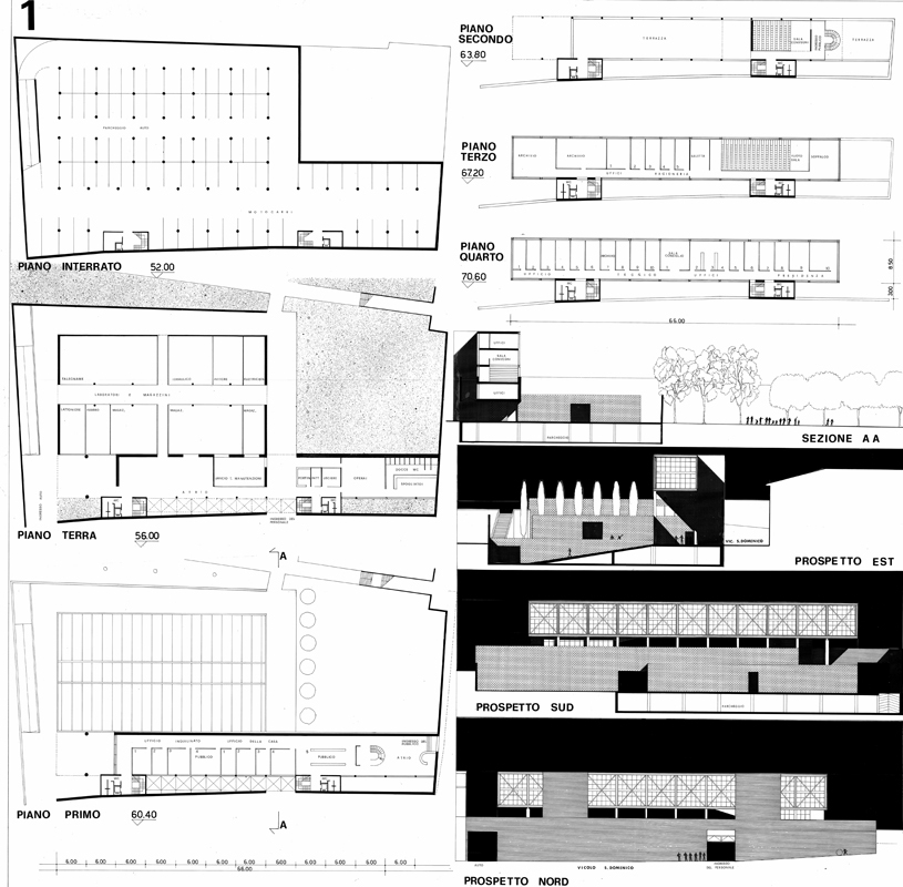
Concorso regionale AGEC Verona 1982

Nuova sede Uffici AGEC Verona 

4° PREMIO

  • BACK
  • Home
  • Biography
  • Contact
Copyright Bertilla Ferro 2016 | All Rights Reserved